St Albans (Victoria Crescent) Specialist Disability Accommodation - Guardian Living Australia
Skip to content

    Get in Touch

    If you are in need of any extra assistance please feel free to reach out to us and we will be happy to assist you.

    Our housing is available to people with disability only

    Marketing Consent Disclaimer

    By submitting an enquiry about any of our properties, you consent to receive marketing communications from Guardian Living. We will only send information that is relevant, helpful, and connected to our services, and we are committed to keeping our communications respectful and limited in frequency.

    You can choose to unsubscribe from these communications at any time by using the unsubscribe link provided in our emails or by contacting us directly.

    📞 Phone: 1300 452 732
    Available 24 hours. After 5pm, calls are diverted to our Emergency Contact phone service.

    📧 Email Contacts:

    Tenancy: tenancy@guardianliving.com.au
    (For all tenancy matters including leases, rent, and SDA payments)

    Repairs & Maintenance: fixit@guardianliving.com.au
    (For all repair and maintenance requests)

    St Albans (Victoria Crescent)

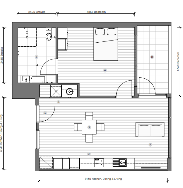
    1 & 2 bedroom apartments | HPS

    Metro
    View Photos(3) View Floorplan

    Property Details

    Bathrooms 1 Bathrooms
    Car Spaces 1 Car Spaces


    Stylish SDA Living with Rooftop Terrace – St Albans

    This stunning new development at 15 Victoria Crescent has been designed to bring together comfort, accessibility and independence in the heart of St Albans. Purpose-built to High Physical Support (HPS) standards, each one-bedroom and two-bedroom apartment offers modern finishes, thoughtful design and the reassurance of 24/7 support through an on-site Overnight Assistance (OOA) unit.

    Residents will enjoy open-plan living and dining spaces, private balconies, and access to a rooftop terrace designed for connection and relaxation. With secure parking, lift access to all levels and carer support on site, this development has been created to support both daily living and long-term wellbeing.

    Property Features

    • 8 x 1 bedroom apartments and 2 x 2 bedroom apartments – Purpose-built to High Physical Support (HPS) standards

    • 1 x On-site Overnight Assistance (OOA) apartment on Level 1 for 24/7 support

    • Private rooftop terrace and BBQ area for residents

    • Six parking spaces, including SDA and DDA-compliant bays

    • Bike storage and accessible resident lobby

    • Lift access to all levels

    📍 Location Highlights

    • Sunshine Hospital only 3.2 km away, offering a wide range of health services

    • St Albans Train Station minutes from the property, with direct links to Melbourne CBD

    • Victoria Crescent retail precinct less than one minute’s walk, with supermarkets, cafés and restaurants

    • Local library and community services nearby for easy access to programs and activities

    • Well connected by major roads and public transport for both participants and carers


    SDA Information

    SDA Design Category:
    High Physical Support
    SDA Building Type:
    8 x 1 bed apartments
    Number of SDA Residents:
    1 resident and 2 resident
    Onsite Shared Support:
    Vacant

      Ready to get in touch?

      If you would like to message us, please fill out the below form.

      Our housing is available to people with disability only


      Marketing Consent Disclaimer

      By submitting an enquiry about any of our properties, you consent to receive marketing communications from Guardian Living. We will only send information that is relevant, helpful, and connected to our services, and we are committed to keeping our communications respectful and limited in frequency.

      You can choose to unsubscribe from these communications at any time by using the unsubscribe link provided in our emails or by contacting us directly.

      Nicole Smith
      Agent Name

      Nicole Smith

      Agent Email